AM-Kugelgewindetriebe: Einbauhinweise
Einbauhinweise  
   

Spindelmutter

Einbauhinweise

Spindellagerung

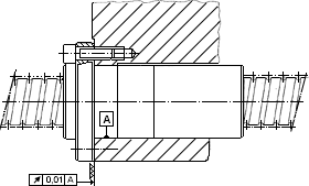
Um eine einwandfreie Funktion sicherzustellen, ist die im Bild angegebene Planlaufabweichung Ihrer Flanschaufnahmefläche zur Spindelachse einzuhalten, d.h. auch Lagerflucht zur Führungsbahn beachten.

Jegliche statische und dynamische Radialkraft auf die Mutter ist auszuschließen. Eine Demontage des Mutternsystems ist unzulässig.

Bei senkrechtem Einbau des Kugelgewinde-
triebs ist vom Maschinenhersteller zu prüfen, ob eine Fangeinrichtung vorzusehen ist.

   
Spindellagerung A
 
Spindellagerung B
 
Spindellagerung C
 
Spindellagerung D
 
Seitenanfang Homepage